WANDRE

Rue de Visé 888
4020 WANDRE 149.000 €
60 m2
2
1
76 m2

Présentation du bien

MAISON 2 CHAMBRES (76,3M² SURFACE BÂTIE) – ÉLECTRICITÉ CONFORME (2041)– PEB C – BON ÉTAT – TERRASSE EXPOSÉE EST (34,63M²)

L’Immobilière Bertholomé vous présente cette maison située à Wandre, dans une petite impasse calme tout en restant à proximité directe de toutes les commodités.
Un bien en bon état général, offrant deux chambres, une belle terrasse exposée est et une installation électrique conforme, idéal pour un premier achat ou un investissement.

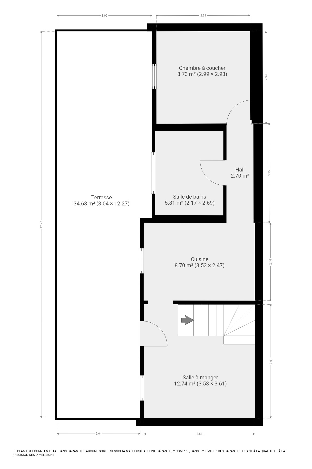
COMPOSITION :

Rez-de-chaussée : Salle à manger (±12,7m²) -  Cuisine équipée (±8,7m²) - Chambre 1 (8,73m²) – Salle de bain (±5,81m²)  – Terrasse exposée est (±38m²)

Premier étage : Salon (13,21m²) - Chambre 2 (8,81m²)

Caves : 12,74m² 

PEB C – Châssis PVC double vitrage – C.C. Mazout – RC : 185€ - Électricité conforme (2041) - volets - Toiture rénovée en 2016

Une maison agréable, pratique et bien située, offrant un excellent rapport qualité/prix.
Une opportunité à saisir rapidement !

Pour plus d'informations ou pour planifier une visite, contactez-nous.

Renseignements supplémentaires disponibles sur www.bertholome.be dans l'onglet "Documents à télécharger". Ces informations sont communiquées à titre informatif et non contractuelles.



 

 

 

Référence
6312
Aspects énergétiques
PEB E spec 243 kWh/m²/an
PEB classe C
PEB E totale 19031 kWh/an
Caractéristiques Générales
Type de bien Maison
Façades 2 façades
Nombre de chambres 2
Nombre de salle de bain 1
Meublé Non
Surface habitable 60 m²
Surface Construite 76 m²
Terrasse Oui
Garage Non
Parking Non
Jardin Non
Cuisine (état) Emménageable
Disponibilité -
Environnement
Autoroute 2800m
Magasins -
Ecoles 360m
Transports en commun 68m
Intérieurs
Nbre de toilette(s) 1
Cuisine (type) Non communiqué
Cave(s) Oui
Double vitrage Oui
Châssis Pvc
Chauffage (ind/coll) Individuel
Financier
Revenu cadastral 185 €
Extérieurs
Nombre de garage 0
Parking extérieur 0
Toiture (type) Tuiles

Découvrez nos biens similaires

MANHAY
Maison
395 m2
7
2
579.000 €
HERSTAL
Appartement
98 m2
2
1
166.000 €
HERSTAL
Appartement
106 m2
2
1
198.000 €