JEMEPPE-SUR-MEUSE

Rue Antonin Delville 56
4101 JEMEPPE-SUR-MEUSE 119.000 €
101 m2
2
1
124 m2

Présentation du bien

MAISON (124M²) AVEC JARDIN - 2 CHAMBRES - À RÉNOVER - OPPORTUNITÉ D'INVESTISSEMENT

Découvrez cette maison à Jemeppe, offrant un potentiel exceptionnel après rénovation. Avec ses deux chambres et son jardin agréable, elle représente une opportunité idéale pour un premier achat ou un investissement locatif.

  • Superficie : 124 m²
  • Chambres : 2
  • Jardin : 76,43 m²
  • Composition :
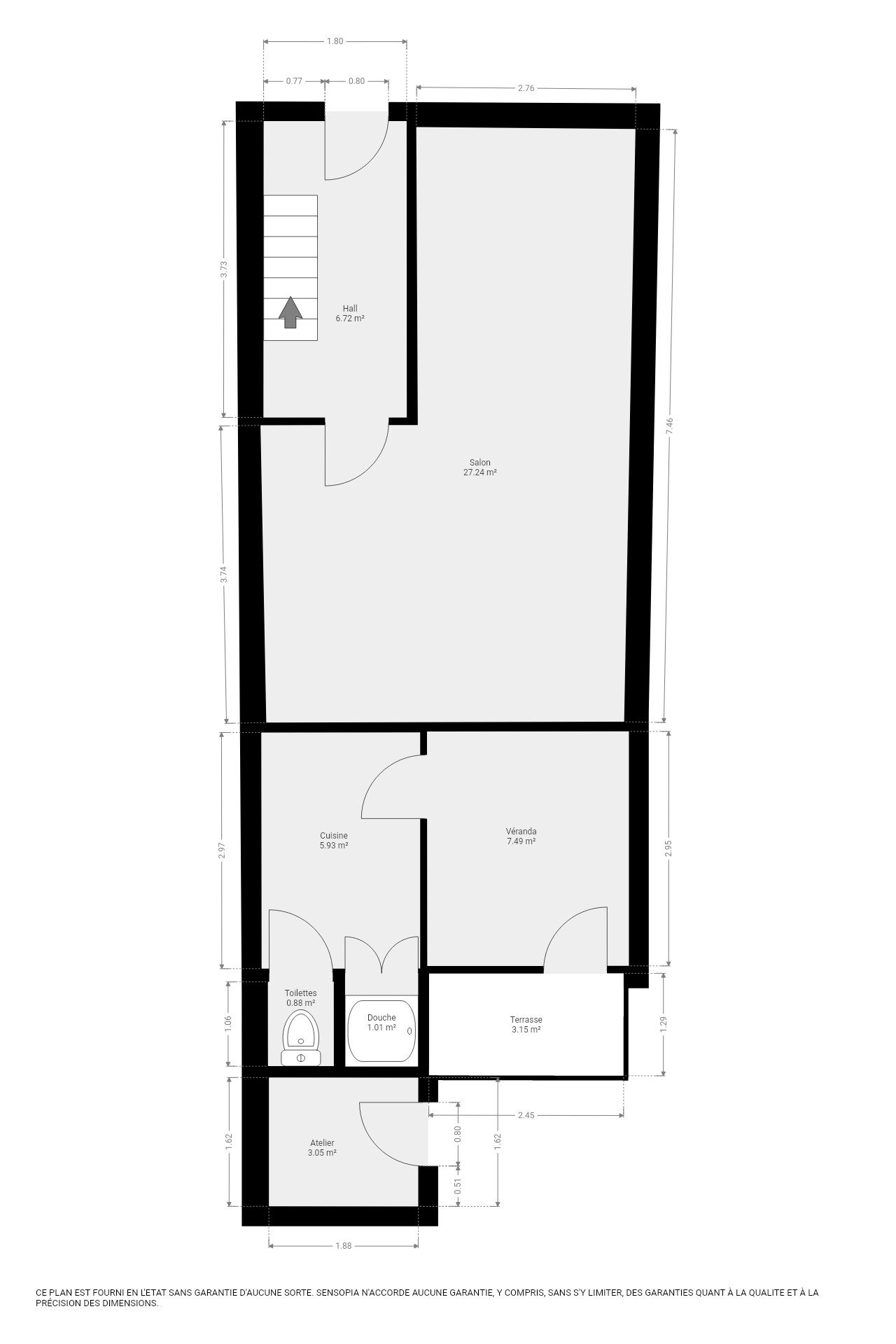
    • Rez-de-chaussée : Pièce de vie (27,24 m²), Cuisine (5,93 m²), Salle de douche (1,01 m²), Véranda/buanderie (7,49 m²), Terrasse (3,15 m²), Hall d'entrée (6,72 m²)
    • Étage : Chambre 1 (17,16 m²), Chambre 2 (9,83 m²), Hall de nuit (5,78 m²)
  • Caractéristiques : Châssis PVC double vitrage, Poêle au gaz, Toiture en bon état, PEB F, RC : 317€

Ce bien sain, à personnaliser selon vos goûts, se situe dans un quartier calme, proche des commodités. Ne manquez pas cette opportunité à saisir rapidement !

Renseignements supplémentaires disponibles sur www.bertholome.be dans l'onglet "Documents à télécharger". Ces informations sont fournies à titre informatif et non contractuel.

Référence
6284
Aspects énergétiques
PEB E spec 426 kWh/m²/an
PEB classe F
PEB E totale 39359 kWh/an
Caractéristiques Générales
Type de bien Maison
Façades 2 façades
Nombre de chambres 2
Nombre de salle de bain 1
Meublé Non
Surface habitable 101 m²
Surface Construite 124 m²
Surface Jardin 76.43 m²
Terrasse Non
Garage Non
Parking Non
Jardin Oui
Cuisine (état) A rafraîchir
Disponibilité -
Environnement
Autoroute -
Magasins 672m
Ecoles 707m
Transports en commun 427m
Intérieurs
Nbre de toilette(s) 1
Cuisine (type) Non-équipée
Cave(s) Oui
Double vitrage Oui
Châssis Pvc
Chauffage (ind/coll) Individuel
Financier
Revenu cadastral 317 €
Extérieurs
Nombre de garage 0
Parking extérieur 0
Toiture (type) Tuiles

Découvrez nos biens similaires

SAINT-NICOLAS
Maison
128 m2
4
1
239.000 €
FLÉMALLE
Maison
163 m2
3
1
214.000 €
OUGRÉE
Maison
205 m2
4
1
299.000 €